Rumah Japandi 2 Lantai di Lahan 6,8 x 10 Meter: Perpaduan Estetika Jepang dan Skandinavia

Gaya arsitektur Japandi semakin populer dalam beberapa tahun terakhir, terutama bagi masyarakat perkotaan yang menginginkan hunian sederhana, rapi, namun tetap hangat dan elegan. Japandi sendiri merupakan perpaduan antara desain Jepang (Japanese) dan Skandinavia (Scandinavian). Kedua gaya ini memiliki kesamaan filosofi yaitu mengutamakan kesederhanaan, fungsi, serta kedekatan dengan alam. Ketika diterapkan pada rumah berukuran terbatas seperti lahan 6,8 x 10 meter, konsep Japandi mampu menghadirkan rumah yang terasa luas, nyaman, dan estetis.

Rumah Japandi dua lantai di lahan 6,8 x 10 meter merupakan solusi ideal bagi keluarga kecil hingga menengah yang tinggal di area perkotaan dengan keterbatasan lahan. Dengan perencanaan desain yang tepat, rumah ini dapat memiliki tata ruang yang efisien, pencahayaan alami yang maksimal, serta tampilan fasad yang menarik.

Konsep Dasar Desain Japandi

Desain Japandi berangkat dari filosofi hidup sederhana dan fungsional. Dalam arsitektur Jepang, terdapat konsep wabi-sabi yang menghargai keindahan dalam kesederhanaan dan ketidaksempurnaan. Sementara itu, gaya Skandinavia menekankan kenyamanan, kehangatan, serta penggunaan material alami.

arsitekdepok.com

Ketika kedua konsep ini digabungkan, lahirlah desain yang bersih, minimalis, namun tetap hangat. Ciri khas rumah Japandi biasanya meliputi:

Bentuk bangunan sederhana dan geometris

Penggunaan material alami seperti kayu, batu, dan beton ekspos

Warna-warna netral dan lembut

Bukaan jendela yang cukup besar

Interior yang minimal namun fungsional

Pada rumah dua lantai di lahan 6,8 x 10 meter, prinsip-prinsip ini sangat membantu dalam menciptakan hunian yang terasa lapang meskipun berada di lahan yang relatif terbatas.

Tantangan Desain pada Lahan 6,8 x 10 Meter

Lahan dengan ukuran 6,8 x 10 meter termasuk kategori lahan compact atau terbatas. Oleh karena itu, perencanaan desain harus benar-benar matang agar setiap ruang dapat dimanfaatkan secara maksimal.

Beberapa tantangan yang biasanya muncul pada lahan ini antara lain:

Keterbatasan ruang terbuka

Kebutuhan pencahayaan alami

Sirkulasi udara yang optimal

Pengaturan ruang agar tidak terasa sempit

Solusi yang paling efektif adalah dengan membangun rumah dua lantai. Dengan demikian, kebutuhan ruang keluarga dapat terpenuhi tanpa mengorbankan area terbuka di bagian depan atau belakang rumah.

Desain Tampak Depan Rumah Japandi

Salah satu daya tarik utama rumah Japandi terletak pada tampilan fasadnya. Pada rumah dua lantai di lahan 6,8 x 10 meter, tampilan depan biasanya dibuat sederhana namun memiliki karakter kuat.

Bentuk atap yang digunakan sering kali berupa atap pelana dengan kemiringan yang tegas. Atap ini memberikan kesan rumah Jepang yang klasik namun tetap modern.

Fasad rumah biasanya memadukan beberapa material seperti:

Dinding berwarna krem atau putih hangat

Panel kayu vertikal sebagai aksen

Beton ekspos atau plester halus

Jendela dengan frame hitam atau cokelat tua

Elemen kayu menjadi salah satu ciri khas utama dalam desain Japandi. Selain memberikan kesan natural, kayu juga membuat rumah terasa lebih hangat dan ramah.

Di bagian depan rumah biasanya terdapat area kecil berupa taman minimalis yang berfungsi sebagai ruang hijau sekaligus mempercantik tampilan fasad.

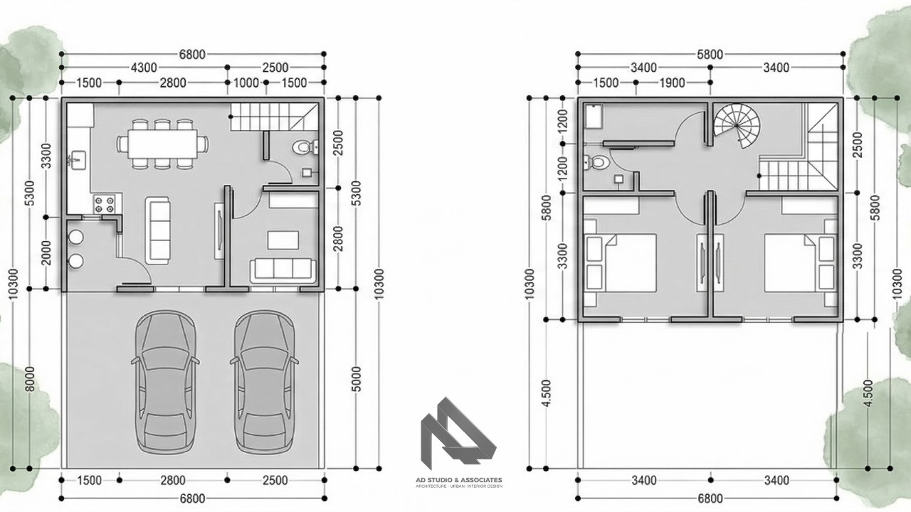
Tata Ruang Lantai 1 yang Efisien

Lantai pertama rumah Japandi umumnya difokuskan untuk aktivitas bersama keluarga. Dengan luas lahan 6,8 x 10 meter, tata ruang harus dibuat terbuka agar terasa lebih lega.

arsitekdepok.com

Beberapa ruang yang biasanya terdapat di lantai satu antara lain:

  1. Carport

Area carport biasanya ditempatkan di bagian depan rumah dengan kapasitas satu mobil. Desain carport dibuat sederhana dengan lantai beton atau batu alam agar selaras dengan konsep natural Japandi.

  1. Teras Depan

Teras kecil menjadi area transisi antara ruang luar dan ruang dalam. Pada desain Japandi, teras biasanya dilengkapi dengan tanaman hijau atau pot minimalis untuk memberikan suasana alami.

  1. Ruang Tamu dan Ruang Keluarga

Konsep open space sering diterapkan pada rumah Japandi. Ruang tamu dan ruang keluarga biasanya menyatu tanpa sekat permanen sehingga menciptakan kesan luas.

Interior ruangan dibuat minimalis dengan furnitur sederhana, warna netral, serta pencahayaan yang lembut.

  1. Ruang Makan

Ruang makan biasanya ditempatkan di tengah rumah, berdekatan dengan dapur. Meja makan kayu dengan desain simpel menjadi pilihan yang paling sesuai dengan gaya Japandi.

  1. Dapur

Dapur pada rumah Japandi memiliki desain yang bersih dan rapi. Kabinet dapur biasanya menggunakan warna putih, krem, atau kayu natural agar selaras dengan konsep keseluruhan rumah.

  1. Kamar Tidur Tamu atau Orang Tua

Jika memungkinkan, satu kamar tidur dapat ditempatkan di lantai satu. Ruangan ini bisa digunakan sebagai kamar tamu atau kamar untuk orang tua.

  1. Kamar Mandi

Kamar mandi di lantai satu biasanya memiliki desain minimalis dengan penggunaan keramik berwarna netral serta pencahayaan alami dari ventilasi.

Tata Ruang Lantai 2

Lantai dua menjadi area yang lebih privat bagi penghuni rumah. Biasanya lantai ini digunakan untuk kamar tidur utama serta kamar anak.

arsitekdepok.com

Beberapa ruang yang dapat direncanakan di lantai dua antara lain:

  1. Kamar Tidur Utama

Kamar utama biasanya memiliki ukuran paling luas di rumah. Desain interiornya tetap mempertahankan prinsip Japandi yaitu sederhana, rapi, dan fungsional.

Elemen kayu sering digunakan pada lantai, headboard tempat tidur, atau lemari pakaian.

  1. Kamar Tidur Anak

Kamar anak dirancang dengan ukuran yang cukup nyaman namun tetap efisien. Furnitur multifungsi seperti tempat tidur dengan laci penyimpanan sangat membantu dalam menghemat ruang.

  1. Kamar Mandi Lantai Dua

Kamar mandi di lantai dua biasanya digunakan oleh penghuni kamar tidur. Desainnya tetap minimalis dengan dominasi warna netral.

  1. Area Santai atau Mezzanine

Jika ruang memungkinkan, lantai dua dapat memiliki area santai kecil atau ruang baca yang menghadap ke jendela besar.

Area ini menjadi tempat yang nyaman untuk bersantai sambil menikmati cahaya alami.

Pencahayaan Alami yang Maksimal

Salah satu prinsip penting dalam desain Japandi adalah memaksimalkan pencahayaan alami. Rumah dengan pencahayaan yang baik akan terasa lebih sehat, nyaman, dan hemat energi.

Pada rumah berukuran 6,8 x 10 meter, pencahayaan alami dapat diperoleh melalui:

Jendela besar di bagian depan rumah

Bukaan jendela samping jika memungkinkan

Skylight pada area tangga

Void kecil di tengah rumah

Penggunaan kaca besar juga membantu membuat ruang terasa lebih luas.

Sirkulasi Udara yang Baik

Selain pencahayaan, sirkulasi udara juga menjadi aspek penting dalam desain rumah Japandi. Rumah yang memiliki ventilasi baik akan terasa lebih sejuk tanpa bergantung pada pendingin ruangan.

Beberapa cara untuk menciptakan sirkulasi udara yang baik antara lain:

Menempatkan jendela pada dua sisi ruangan

Menggunakan ventilasi silang (cross ventilation)

Menyediakan taman kecil di depan atau belakang rumah

Dengan perencanaan yang tepat, rumah di lahan terbatas pun tetap dapat memiliki kualitas udara yang baik.

Material yang Digunakan

Material memainkan peran penting dalam menciptakan karakter rumah Japandi. Material yang digunakan biasanya bersifat alami dan memiliki tekstur yang sederhana.

arsitekdepok.com

Beberapa material yang sering digunakan antara lain:

Kayu

Kayu digunakan untuk aksen dinding, plafon, furnitur, atau lantai. Warna kayu natural memberikan kesan hangat dan menenangkan.

Beton Ekspos

Beton ekspos memberikan sentuhan modern dan sederhana pada rumah Japandi.

Batu Alam

Batu alam sering digunakan pada area taman atau dinding eksterior sebagai elemen dekoratif.

Kaca

Kaca digunakan untuk memperbesar bukaan agar cahaya alami dapat masuk dengan maksimal.

Warna yang Digunakan dalam Desain Japandi

Palet warna dalam desain Japandi cenderung netral dan lembut. Warna-warna ini memberikan kesan tenang serta membuat rumah terasa lebih luas.

Beberapa warna yang sering digunakan antara lain:

Putih hangat

Beige atau krem

Abu-abu muda

Cokelat kayu

Hitam sebagai aksen

Perpaduan warna ini menciptakan suasana rumah yang elegan namun tetap sederhana.

Taman Minimalis sebagai Elemen Alam

Kehadiran unsur alam menjadi bagian penting dalam konsep Japandi. Oleh karena itu, taman kecil di depan rumah dapat menjadi elemen yang sangat penting.

Taman minimalis dapat diisi dengan tanaman seperti:

Palem kecil

Tanaman tropis

Rumput hijau

Batu alam sebagai dekorasi

Selain mempercantik tampilan rumah, taman juga membantu menciptakan suasana yang lebih segar dan alami.

Keunggulan Rumah Japandi 2 Lantai

Rumah Japandi dua lantai di lahan 6,8 x 10 meter memiliki banyak keunggulan, di antaranya:

  1. Desain Timeless

Gaya Japandi tidak mudah ketinggalan zaman karena mengutamakan kesederhanaan.

  1. Rumah Terasa Lebih Luas

Konsep minimalis dan penggunaan warna terang membuat rumah terasa lebih lapang.

  1. Nyaman dan Menenangkan

Suasana rumah Japandi sangat cocok untuk menciptakan hunian yang tenang dan nyaman.

  1. Hemat Energi

Pencahayaan alami dan ventilasi yang baik membuat penggunaan listrik lebih efisien.

arsitekdepok.com

Penutup

Rumah Japandi dua lantai di lahan 6,8 x 10 meter merupakan pilihan desain yang ideal untuk hunian modern di kawasan perkotaan. Dengan perpaduan konsep Jepang dan Skandinavia, rumah ini mampu menghadirkan keseimbangan antara estetika, fungsi, dan kenyamanan.

Melalui perencanaan tata ruang yang efisien, penggunaan material alami, serta pencahayaan yang optimal, rumah berukuran compact pun dapat terasa luas dan menyenangkan untuk ditinggali. Desain Japandi tidak hanya menawarkan tampilan yang indah, tetapi juga menciptakan kualitas hidup yang lebih baik bagi penghuninya.

Hunian seperti ini menjadi bukti bahwa keterbatasan lahan bukanlah penghalang untuk memiliki rumah yang nyaman, modern, dan penuh karakter. Dengan konsep desain yang tepat, rumah di lahan kecil pun dapat berubah menjadi tempat tinggal yang hangat dan menenangkan bagi seluruh anggota keluarga.

Jika anda membutuhkan konsultasi mengenai perencanaan renovasi rumah anda, silakan lebih lanjut bisa menghubungi Tim Arsi D. Studio. Kami akan mewujudkan impian anda menjadi kenyataan.

Terima Kasih