Memiliki lahan berukuran compact seperti 6 x 10 meter (60 meter persegi) di kawasan urban dan sub-urban yang padat seperti Sawangan, Depok, menghadirkan tantangan tersendiri. Keterbatasan ruang seringkali membuat pemilik lahan ragu: Bisakah lahan sekecil ini disulap menjadi hunian dua lantai yang mewah, fungsional, dan tidak terasa sesak?
Jawabannya adalah: Bisa, dengan perencanaan arsitektur yang presisi.
Kami hadir sebagai biro jasa desain arsitektur yang berfokus pada solusi tata ruang efisien dan estetika fasad kontemporer. Kami percaya bahwa luasan lahan bukanlah batasan untuk menciptakan mahakarya arsitektur. Melalui artikel ini, kami akan membedah pendekatan desain kami yang telah terbukti berhasil menyulap lahan terbatas menjadi hunian bernilai estetika tinggi, menggunakan studi kasus desain rumah tropis modern berukuran 6×10 meter.

Mengapa Lahan 6×10 Membutuhkan Sentuhan Arsitek Profesional?
Membangun di lahan sempit tidak bisa mengandalkan metode “kira-kira”. Tanpa perencanaan matang, Anda berisiko menghadapi masalah serius di kemudian hari: ruangan yang pengap, cahaya matahari yang tidak masuk, sirkulasi yang terputus, hingga pembengkakan biaya konstruksi akibat bongkar-pasang.
Sebagai profesional di bidang arsitektur, interior, dan drafting, kami tidak sekadar menggambar denah. Kami merancang ekosistem hunian. Untuk lahan 6 meter, kami menerapkan konsep open plan yang cair, memastikan integrasi mulus antara ruang keluarga, ruang makan, dan dapur, sekaligus mempertahankan privasi di lantai dua.
Portofolio Desain: Kemewahan Fasad Tropis Modern
Sebagai gambaran kualitas rancangan kami, mari bedah salah satu konsep hunian 6×10 yang menjadi signature style kami. Pendekatan kami selalu berakar pada respons terhadap iklim tropis yang dikemas dengan visual modern yang maskulin dan elegan.
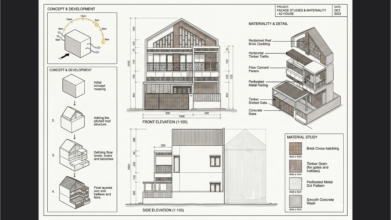
Geometri Atap Pelana (Gable Roof): Kami menghindari atap datar yang rawan bocor di iklim tropis bercurah hujan tinggi. Desain kami mengekspos bentuk atap pelana bersudut asimetris yang menjulang. Proporsi vertikal ini memanipulasi persepsi visual, membuat fasad selebar 6 meter terlihat megah dan monumental.
Permainan Material Berkarakter: Kami memastikan keseimbangan antara elemen industrial dan natural. Penggunaan secondary skin berupa kisi-kisi vertikal, dipadukan dengan fasad bata terakota dan sentuhan tekstur kayu bergaya Scandinavian minimalist, menciptakan kontras visual yang memikat.
Optimalisasi Area Fungsional: Perhatian kami pada detail menjangkau seluruh area. Contohnya pada area carport; alih-alih menggunakan keramik standar, kami merekomendasikan dan memvisualisasikan material bertekstur acian kasar. Material ini tidak hanya aman dan anti-selip, tetapi juga memberikan sentuhan raw yang estetik dan minim perawatan.

Keunggulan Jasa Desain Kami: Presisi Teknis dan Visualisasi Tingkat Tinggi
Banyak penyedia jasa desain hanya menawarkan gambar yang “terlihat bagus”. Kami memberikan lebih dari itu. Layanan kami memadukan standar estetika akademis dengan spesifikasi teknis yang siap bangun. Berikut adalah keunggulan layanan kami yang membedakan kami dari yang lain:
- Kualitas Render Arsitektural Tingkat Lanjut
Visualisasi yang kami berikan bukan sekadar gambar 3D biasa, melainkan simulasi arsitektural yang akurat. Kami menggunakan pendekatan fotografi arsitektur dalam melakukan rendering, dengan spesifikasi teknis seperti penggunaan simulasi lensa tilt-shift 24mm untuk menjaga garis vertikal bangunan tetap lurus dan proporsional. Didukung dengan pengaturan aperture f/8, kami menghasilkan kedalaman ruang (depth of field) yang tajam. Untuk tata cahaya, kami secara spesifik merancang simulasi lampu bersuhu warna 4000K (Natural White) agar Anda bisa melihat dengan jelas nuansa cahaya baur yang hangat namun tetap bersih pada fasad rumah Anda.
- Standar Presentasi Akademis dan Profesional
Kami mengedepankan estetika murni dari bentuk dan proporsi bangunan. Output desain kami disajikan dalam board presentasi berformat A2 landscape yang dirancang secara profesional. Untuk menonjolkan kejujuran desain dan arsitektur bangunan, gambar presentasi (sesuai permintaan) dirender bersih dari elemen pengganggu—tanpa figur manusia, tanpa mobil, dan tanpa latar belakang lingkungan yang ramai. Presentasi ini dilengkapi dengan diagram exploded material callout yang mendetail, menggunakan tipografi minimalis yang sangat rapi untuk pelabelan spesifikasi (seperti detail ROOF SHINGLES atau pelapis lantai), sehingga kontraktor dapat memahami gambar dengan mudah.
- Perencanaan Elektrikal & MEP yang Komprehensif
Desain yang indah harus didukung oleh utilitas yang aman. Kami tidak mengabaikan sistem Mekanikal, Elektrikal, dan Plumbing (MEP). Dalam paket desain teknis, kami menyertakan analisis diagram wiring yang matang untuk rumah dua lantai. Ini mencakup perencanaan grouping MCB yang aman untuk menghindari korsleting, hingga pembagian titik lampu dan spesifikasi beban daya yang detail (misalnya, perhitungan cermat untuk asumsi beban stop kontak sebesar 160W per titik).

Paket Layanan Desain Arsitektur Kami
Kami memahami bahwa kebutuhan setiap klien berbeda. Oleh karena itu, kami menyediakan layanan terstruktur yang merangkum keseluruhan proses perancangan, dari ide hingga gambar kerja siap bangun.
Tahap Konseptual & Denah: Konsultasi mendalam untuk memahami gaya hidup Anda. Kami akan merancang denah ruang lantai 1 dan lantai 2 yang paling efisien untuk kaveling 6×10 Anda.
Pembuatan 3D Fasad & Eksterior: Eksplorasi bentuk geometri bangunan, studi massa, dan pemilihan material (seperti bata ekspos, wood plank, baja hitam, dan acian kasar).
Visualisasi Interior: Desain tata letak furnitur custom yang pas untuk ruang compact, memastikan sirkulasi tetap lega.
Gambar Kerja / DED (Detail Engineering Design): Bundel dokumen teknis lengkap yang menjadi panduan kontraktor. Terdiri dari gambar arsitektural, detail potongan, detail pintu/jendela, struktur, hingga skema wiring MEP yang mendetail.
RAB (Rencana Anggaran Biaya): Estimasi perhitungan material dan biaya bangun untuk mengontrol budget konstruksi Anda agar tidak over-budget.

FAQ: Pertanyaan yang Sering Diajukan Seputar Jasa Arsitek Kami
Berapa biaya jasa desain untuk luasan tanah 6×10 (60m2)?
Biaya jasa kami dihitung berdasarkan luasan total bangunan (Luas Bangunan/LB) per meter persegi, bukan luas tanah. Untuk penawaran harga yang sesuai dengan kebutuhan Anda, silakan hubungi tim kami untuk mendapatkan quotation secara transparan.
Apakah melayani desain luar kota (di luar Depok/Bogor/Jakarta)?
Ya, kami melayani perancangan desain secara nasional. Seluruh proses konsultasi, revisi board presentasi, dan pengiriman dokumen gambar kerja (DED) dapat dilakukan secara online dengan komunikasi yang intensif.
Apakah tim arsitek juga bisa sekaligus menjadi kontraktor (jasa bangun)?
Fokus utama kami saat ini adalah pada penyediaan jasa desain arsitektur, interior, dan drafting gambar kerja yang sangat presisi. Gambar kerja kami disusun dengan standar profesional sehingga kontraktor atau pemborong mana pun yang Anda pilih dapat mengeksekusinya dengan akurat.

Wujudkan Hunian Ideal Anda Sekarang
Jangan biarkan lahan sempit membatasi imajinasi Anda. Dengan perencanaan yang detail, material yang tepat, dan tata cahaya yang cerdas, hunian di lahan 6×10 bisa menjadi karya arsitektur yang menakjubkan.
Serahkan perancangan denah, visualisasi 3D yang memukau, hingga kerumitan instalasi MEP bangunan Anda kepada kami.
Siap untuk berdiskusi? Klik tombol di bawah ini untuk memulai konsultasi awal mengenai kebutuhan ruang, style arsitektur impian, dan anggaran Anda secara langsung via WhatsApp.
Jika anda membutuhkan konsultasi mengenai perencanaan renovasi rumah anda, silakan lebih lanjut bisa menghubungi Tim Arsi D. Studio. Kami akan mewujudkan impian anda menjadi kenyataan.
Terima Kasih
