Dalam perencanaan sebuah bangunan, baik itu rumah tinggal, kantor, atau bangunan komersial, denah lantai merupakan elemen krusial yang menentukan tata letak, sirkulasi, dan kenyamanan penghuni. Denah lantai 1 dan 2 harus dirancang dengan mempertimbangkan faktor estetika, fungsionalitas, serta efisiensi ruang. Artikel ini akan membahas berbagai aspek dalam perencanaan denah lantai pertama dan kedua, termasuk prinsip desain, contoh penerapan, serta tips dalam menyusun denah yang ideal.
- Prinsip Dasar dalam Perencanaan Denah Lantai
Sebelum menggambar denah lantai, penting untuk memahami beberapa prinsip dasar yang mendukung perencanaan ruang agar optimal dan nyaman:
Zonasi Ruang
Lantai 1 umumnya digunakan untuk area publik dan semi-privat seperti ruang tamu, ruang makan, dapur, dan garasi.
Lantai 2 biasanya diperuntukkan bagi ruang privat seperti kamar tidur dan ruang keluarga.

Sirkulasi yang Efisien
Akses antar-ruangan harus dirancang agar mudah dijangkau.
Penempatan tangga harus strategis agar tidak menghambat aliran lalu lintas dalam rumah.
Pencahayaan dan Ventilasi
Pemanfaatan cahaya alami akan mengurangi penggunaan listrik dan meningkatkan kualitas udara dalam ruangan.
Setiap ruangan sebaiknya memiliki akses ke jendela atau ventilasi yang baik.
Keseimbangan Estetika dan Fungsi
Selain fungsional, desain denah harus memiliki estetika yang menarik dan sesuai dengan gaya arsitektur rumah.
- Denah Lantai 1: Ruang Publik dan Semi-Privat
Lantai pertama merupakan area yang paling banyak diakses oleh penghuni dan tamu, sehingga desainnya harus mengutamakan kenyamanan serta keterhubungan antar-ruang. Berikut adalah beberapa elemen utama dalam denah lantai 1:
- Ruang Tamu
Sebagai area pertama yang ditemui saat memasuki rumah, ruang tamu harus memiliki desain yang terbuka dan ramah.
Disarankan untuk menghindari sekat yang berlebihan agar menciptakan kesan luas.
Penggunaan jendela besar dapat membantu pencahayaan alami dan menciptakan suasana yang lebih terang.
- Ruang Makan dan Dapur
Ruang makan biasanya terhubung dengan dapur untuk kemudahan akses.
Konsep open space antara ruang makan dan dapur sering diterapkan untuk menciptakan kesan luas dan modern.
Dapur sebaiknya memiliki sirkulasi udara yang baik untuk menghindari bau makanan yang menyebar ke seluruh rumah.
- Kamar Tidur Tamu atau Kamar Tidur Utama
Jika ada anggota keluarga lansia, kamar tidur di lantai 1 sangat disarankan agar lebih mudah dijangkau.
Kamar tidur utama di lantai 1 juga bisa menjadi pilihan bagi rumah dengan luas tanah yang lebih besar.

- Kamar Mandi
Lantai pertama sebaiknya memiliki minimal satu kamar mandi yang bisa digunakan oleh tamu maupun penghuni.
Letaknya bisa dekat ruang tamu atau dapur untuk memudahkan akses.
- Garasi atau Carport
Jika rumah memiliki kendaraan, maka garasi atau carport harus didesain dengan akses mudah ke dalam rumah.
Ukuran garasi sebaiknya disesuaikan dengan jumlah kendaraan yang dimiliki.
- Denah Lantai 2: Area Privat dan Ruang Keluarga
Lantai kedua umumnya digunakan untuk area privat yang lebih tenang dan jauh dari keramaian lantai 1. Beberapa ruang yang sering ditemukan di lantai ini antara lain:
- Kamar Tidur
Biasanya terdapat kamar tidur utama dan kamar tidur anak di lantai 2.
Desain kamar harus memperhitungkan pencahayaan alami, ventilasi, serta kebutuhan penyimpanan yang efisien.
- Kamar Mandi Pribadi
Beberapa rumah memiliki kamar mandi dalam di kamar utama untuk kenyamanan penghuni.
Kamar mandi tambahan bisa diletakkan di tengah area kamar tidur agar mudah diakses oleh anggota keluarga.
- Ruang Keluarga
Ruang ini berfungsi sebagai tempat berkumpul keluarga, sehingga desainnya harus nyaman dan hangat.
Bisa dilengkapi dengan sofa yang empuk, televisi, atau area membaca.
- Balkon atau Teras Atas
Menambah balkon di lantai 2 akan memberikan akses udara segar dan pemandangan yang lebih luas.
Balkon bisa digunakan untuk bersantai atau sekadar menikmati udara luar di pagi dan sore hari.

- Tips Mendesain Denah Lantai 1 dan 2
Sesuaikan dengan Kebutuhan Penghuni
Jika rumah untuk keluarga besar, maka jumlah kamar harus disesuaikan dengan jumlah anggota keluarga.
Jika sering menerima tamu, pertimbangkan ruang tamu yang lebih luas dan area hiburan.
Gunakan Konsep Open Space
Konsep terbuka pada lantai 1 akan menciptakan kesan luas dan modern.
Hindari banyaknya sekat untuk meningkatkan fleksibilitas ruang.
Manfaatkan Ruang Vertikal
Jika luas tanah terbatas, memanfaatkan ruang vertikal dengan membuat lantai 2 bisa menjadi solusi.
Lemari built-in dan mezzanine bisa membantu mengoptimalkan ruang.
Gunakan Material yang Tepat
Material lantai, dinding, dan langit-langit harus mempertimbangkan faktor keamanan, estetika, dan kenyamanan.
Misalnya, gunakan lantai kayu untuk suasana hangat atau keramik untuk kesan modern dan mudah dibersihkan.
Pertimbangkan Keamanan dan Privasi
Pastikan ada perbedaan antara area publik dan privat agar penghuni merasa nyaman.
Penempatan tangga dan akses ke lantai 2 harus mempertimbangkan faktor keamanan, terutama bagi anak-anak dan lansia.
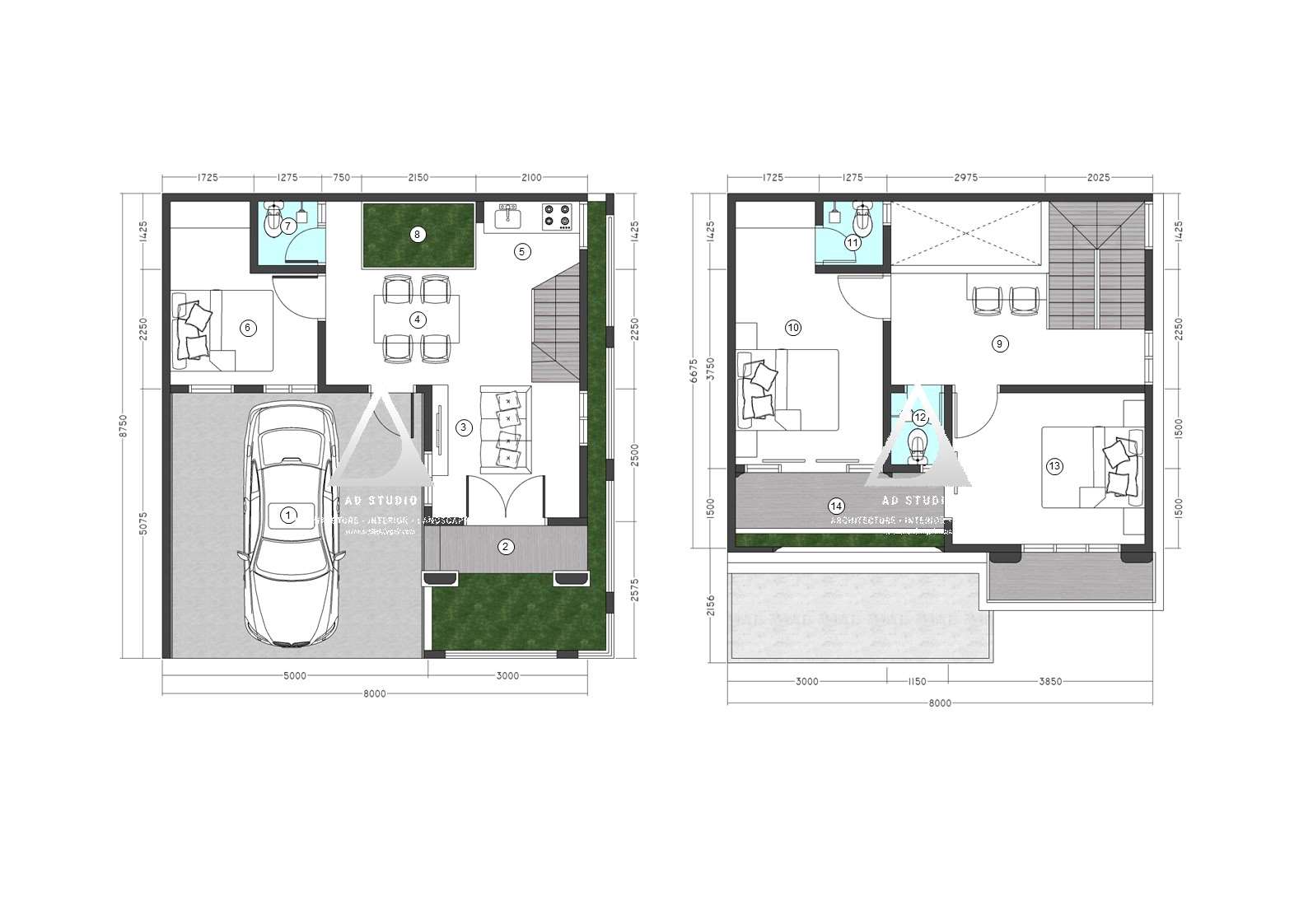
Denah lantai 1 dan 2 memiliki karakteristik yang berbeda karena masing-masing dirancang untuk fungsi tertentu dalam sebuah bangunan. Lantai 1 biasanya difokuskan pada area publik dan semi-privat, yang sering digunakan untuk menerima tamu dan aktivitas sehari-hari. Ruang-ruang utama yang sering ditemukan di lantai 1 adalah ruang tamu, ruang makan, dapur, serta area servis seperti garasi dan gudang. Ruang tamu biasanya didesain dengan konsep terbuka untuk menciptakan kesan luas dan ramah, sementara dapur sering kali berdekatan dengan ruang makan untuk mempermudah akses. Selain itu, jika ada anggota keluarga lansia, kamar tidur bisa ditempatkan di lantai 1 untuk memudahkan mobilitas.

Sementara itu, lantai 2 lebih banyak difungsikan sebagai area privat yang memberikan kenyamanan dan ketenangan bagi penghuni rumah. Biasanya, lantai ini terdiri dari kamar tidur utama dan kamar anak, lengkap dengan kamar mandi pribadi atau bersama. Selain itu, ruang keluarga juga sering ditempatkan di lantai 2 untuk menciptakan suasana yang lebih intim dan nyaman bagi anggota keluarga. Beberapa desain rumah juga menyertakan balkon atau teras atas yang bisa digunakan sebagai area bersantai atau taman kecil untuk menambah kenyamanan.
Dalam hal sirkulasi, tangga yang menghubungkan lantai 1 dan 2 harus ditempatkan di lokasi strategis agar akses antar-ruangan tetap efisien tanpa mengganggu tata letak. Denah lantai 2 sering kali lebih sederhana dibandingkan lantai 1, karena ruangannya lebih bersifat privat dan tidak membutuhkan area yang terlalu luas untuk aktivitas umum. Namun, pencahayaan alami dan ventilasi tetap menjadi faktor penting dalam perancangan kedua lantai, sehingga jendela dan bukaan udara perlu diperhitungkan dengan baik.
Dengan perbedaan fungsi yang cukup jelas, lantai 1 lebih menekankan keterbukaan dan kemudahan akses, sementara lantai 2 lebih berfokus pada kenyamanan dan privasi penghuni. Desain denah yang baik harus mempertimbangkan keseimbangan antara kedua elemen ini agar rumah menjadi tempat tinggal yang nyaman, fungsional, dan estetis.
Denah lantai 1 dan 2 memiliki banyak manfaat dalam perancangan bangunan, terutama dalam hal efisiensi ruang, kenyamanan, dan fungsionalitas. Dengan adanya denah yang jelas, penghuni dapat memahami tata letak rumah sebelum proses pembangunan dimulai, sehingga dapat mengoptimalkan penggunaan setiap area sesuai kebutuhan. Denah lantai 1 yang umumnya berfungsi sebagai area publik memudahkan interaksi sosial, karena ruang tamu, ruang makan, dan dapur ditempatkan dalam satu kesatuan yang terhubung dengan baik. Hal ini menciptakan lingkungan yang nyaman bagi penghuni maupun tamu yang datang.
Lantai 2 memberikan manfaat dalam hal privasi, karena biasanya digunakan sebagai area pribadi yang lebih tenang. Keberadaan kamar tidur, ruang keluarga, dan balkon di lantai atas memungkinkan penghuni memiliki tempat istirahat yang lebih nyaman dan terpisah dari kebisingan aktivitas di lantai bawah. Selain itu, pembagian ruang antara lantai 1 dan 2 memungkinkan rumah lebih terorganisir, di mana aktivitas umum dan sosial tidak mengganggu area pribadi penghuni.
Manfaat lain dari memiliki denah lantai 1 dan 2 adalah pemanfaatan lahan yang lebih optimal. Dengan membangun rumah bertingkat, penghuni dapat memiliki lebih banyak ruang tanpa harus memperluas bangunan secara horizontal, yang sangat menguntungkan terutama untuk lahan yang terbatas. Sirkulasi udara dan pencahayaan alami juga bisa lebih maksimal dengan desain yang baik, karena lebih banyak peluang untuk membuat bukaan atau jendela pada berbagai sisi rumah.
Selain itu, denah yang terencana dengan baik membantu dalam efisiensi energi, karena dapat mengatur pencahayaan alami, ventilasi, serta mengurangi kebutuhan akan pendingin atau pemanas ruangan. Dengan pembagian fungsi yang jelas antara lantai 1 dan 2, penghuni dapat menikmati kenyamanan yang lebih baik serta mengatur tata ruang secara lebih efektif sesuai dengan gaya hidup mereka.

Kesimpulan
Perencanaan denah lantai 1 dan 2 harus dilakukan dengan mempertimbangkan fungsi, estetika, serta kenyamanan bagi penghuni. Lantai 1 umumnya digunakan untuk area publik seperti ruang tamu, dapur, dan ruang makan, sementara lantai 2 lebih dikhususkan untuk ruang privat seperti kamar tidur dan ruang keluarga. Dengan memperhatikan prinsip desain yang baik, sirkulasi yang efisien, serta pemanfaatan ruang yang optimal, sebuah rumah bisa menjadi tempat tinggal yang nyaman dan fungsional bagi seluruh anggota keluarga.
Membuat denah yang ideal bukan hanya soal estetika, tetapi juga bagaimana ruang dapat dimanfaatkan dengan maksimal sesuai dengan kebutuhan dan gaya hidup penghuni. Jika direncanakan dengan baik, lantai 1 dan 2 bisa memberikan keseimbangan antara kenyamanan, fungsi, dan desain yang menarik.
Jika anda membutuhkan konsultasi mengenai perencanaan renovasi rumah anda, silakan lebih lanjut bisa menghubungi Tim Arsi D. Studio. Kami akan mewujudkan impian anda menjadi kenyataan.
Terima Kasih
