Denah rumah minimalis menjadi salah satu elemen penting dalam perencanaan hunian modern. Dengan desain yang sederhana namun fungsional, denah rumah minimalis mampu mengoptimalkan ruang yang tersedia, sehingga menciptakan hunian yang nyaman meski pada lahan terbatas. Artikel ini akan membahas berbagai contoh gambar denah rumah minimalis serta memberikan tips dalam merancang denah yang ideal untuk kebutuhan Anda.
Mengapa Memilih Denah Rumah Minimalis?
Desain rumah minimalis sangat populer saat ini karena beberapa alasan berikut:

Efisiensi Ruang
Denah minimalis dirancang untuk memanfaatkan setiap sudut rumah, sehingga tidak ada ruang yang terbuang sia-sia.
Biaya Lebih Terjangkau
Rumah minimalis membutuhkan bahan bangunan lebih sedikit dan biasanya memiliki desain sederhana yang mudah dibangun.
Estetika Modern
Dengan gaya yang bersih dan terorganisir, rumah minimalis memberikan kesan modern yang menarik.
Contoh Gambar Denah Rumah Minimalis
Berikut beberapa contoh denah rumah minimalis berdasarkan jumlah kamar dan ukuran rumah:
- Denah Rumah Minimalis 1 Kamar Tidur
Ideal untuk pasangan muda atau individu yang tinggal sendiri, rumah dengan satu kamar tidur biasanya dirancang dengan ruang tamu yang terhubung langsung ke dapur dan kamar mandi kecil.
Fitur utama:
Ruang tamu multifungsi.
Dapur kecil dengan meja makan minimalis.
Area kamar tidur yang terpisah untuk privasi.
- Denah Rumah Minimalis 2 Kamar Tidur
Rumah dua kamar tidur adalah pilihan populer bagi keluarga kecil. Biasanya, kedua kamar ditempatkan berdampingan atau dipisahkan oleh ruang tamu.
Fitur utama:
Ruang tamu yang luas.
Dapur dengan akses langsung ke halaman belakang.
Kamar mandi yang mudah diakses dari seluruh rumah.
- Denah Rumah Minimalis 3 Kamar Tidur
Rumah dengan tiga kamar tidur cocok untuk keluarga yang lebih besar. Desain denah ini sering mencakup kamar tidur utama dengan kamar mandi dalam, serta dua kamar tidur lainnya untuk anak-anak atau tamu.
Fitur utama:
Ruang keluarga yang luas untuk berkumpul.
Dapur yang terintegrasi dengan ruang makan.
Halaman kecil untuk area bermain atau taman.

- Denah Rumah Tipe 36
Tipe 36 adalah salah satu pilihan rumah minimalis yang paling banyak diminati di Indonesia. Dengan luas bangunan 36 meter persegi, denah ini sering memiliki dua kamar tidur, satu kamar mandi, dan ruang tamu yang juga berfungsi sebagai ruang keluarga.
Fitur utama:
Desain sederhana namun fungsional.
Dapur yang compact.
Taman kecil di depan rumah.
- Denah Rumah Tipe 45
Rumah tipe 45 sedikit lebih luas dibanding tipe 36, sehingga memberikan fleksibilitas lebih dalam merancang interior. Biasanya, rumah ini memiliki ruang keluarga yang lebih besar dan dapur yang terpisah.
Fitur utama:
Ruang tamu dan ruang makan yang terpisah.
Kamar tidur utama yang luas.
Area servis atau laundry di belakang rumah.
Tips Mendesain Denah Rumah Minimalis
Prioritaskan Kebutuhan
Tentukan jumlah kamar dan ruang yang benar-benar Anda butuhkan. Hindari menambahkan ruang yang tidak perlu untuk menjaga efisiensi.
Gunakan Konsep Open Space
Konsep ruang terbuka membantu menciptakan kesan luas pada rumah minimalis. Misalnya, gabungkan ruang tamu, ruang makan, dan dapur dalam satu area tanpa sekat.
Optimalkan Pencahayaan dan Ventilasi
Pastikan setiap ruangan mendapatkan pencahayaan alami yang cukup dan sirkulasi udara yang baik.

Pertimbangkan Sirkulasi Ruang
Buatlah jalur sirkulasi yang jelas dan nyaman untuk penghuni rumah. Hindari denah yang membuat Anda harus melewati satu ruangan untuk mencapai ruangan lainnya.
Manfaatkan Area Vertikal
Jika luas tanah terbatas, pertimbangkan untuk membangun rumah bertingkat. Lantai atas dapat digunakan untuk kamar tidur, sementara lantai bawah untuk ruang tamu dan dapur.
Kesalahan Umum dalam Mendesain Denah Rumah Minimalis
Tidak Sesuai dengan Kebutuhan
Denah yang tidak mempertimbangkan kebutuhan penghuni dapat menyebabkan ruang yang kurang fungsional.
Kurang Memanfaatkan Lahan
Banyak yang gagal memaksimalkan potensi lahan, seperti tidak memanfaatkan sudut ruangan atau tidak membuat taman kecil.
Pencahayaan yang Kurang Baik
Rumah minimalis sering kali terasa sempit jika tidak didukung dengan pencahayaan alami yang cukup.
Tidak Ada Ruang Penyimpanan
Rumah minimalis membutuhkan solusi penyimpanan yang cerdas untuk menjaga kerapihan. Pastikan denah menyertakan ruang penyimpanan seperti lemari built-in atau gudang kecil.
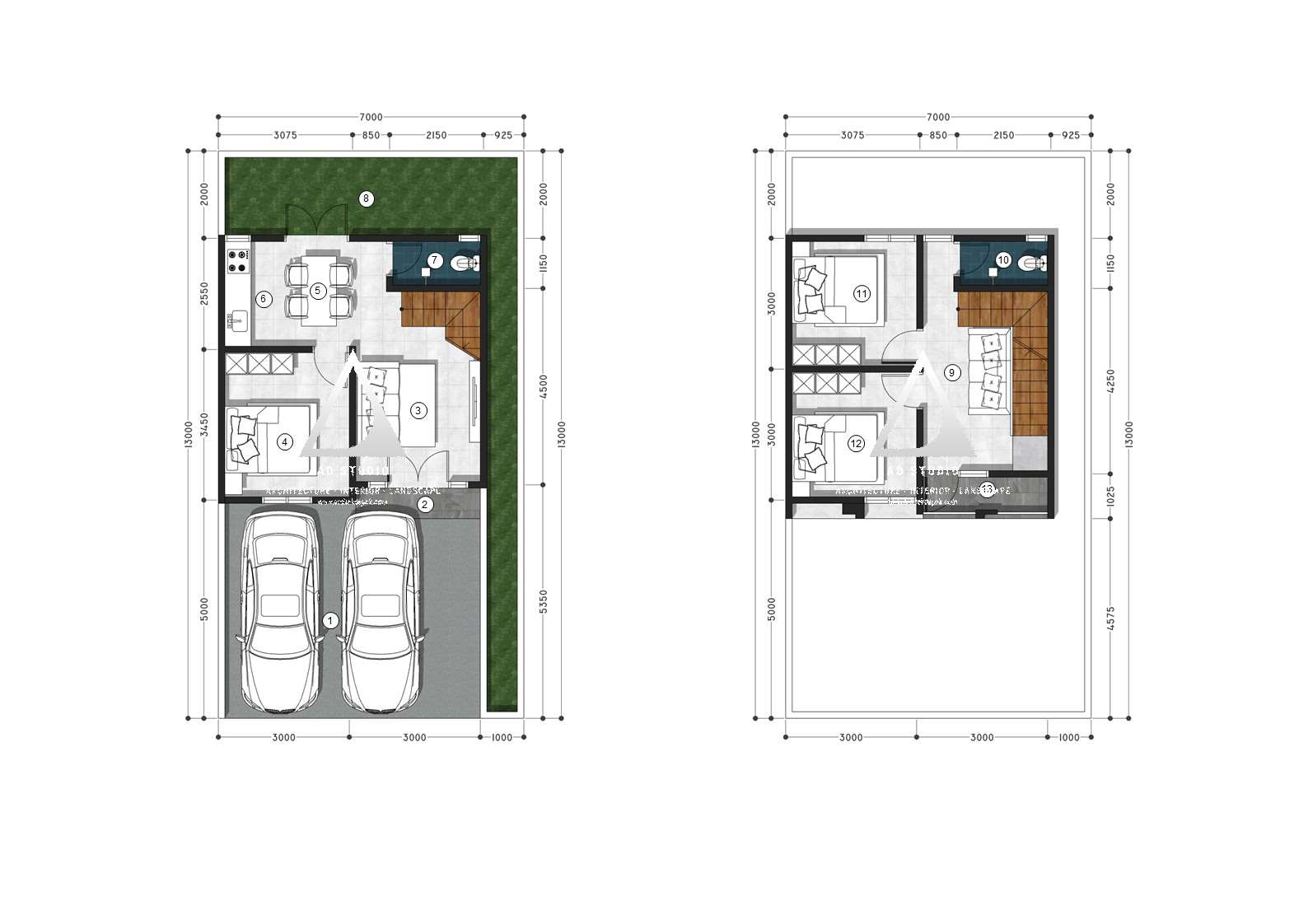
Denah rumah minimalis memiliki ciri khas yang mencerminkan desain sederhana namun efisien. Setiap elemen dalam denah dirancang untuk memaksimalkan penggunaan ruang, tanpa mengorbankan kenyamanan dan fungsi. Biasanya, denah ini menonjolkan tata letak yang terorganisir dengan baik, di mana setiap ruangan memiliki fungsi yang jelas. Ruang tamu sering kali terintegrasi dengan ruang makan atau dapur, menciptakan suasana yang terbuka dan luas meskipun pada lahan terbatas.
Garis-garis pada denah minimalis cenderung lurus dan sederhana, mencerminkan gaya arsitektur modern. Bentuk-bentuk geometris mendominasi, dengan pembagian ruang yang proporsional. Elemen seperti koridor panjang atau sudut yang tidak terpakai jarang ditemukan, karena denah minimalis berfokus pada efisiensi penggunaan setiap meter persegi lahan.

Ciri lain yang menonjol adalah keberadaan ruang-ruang multifungsi. Misalnya, ruang keluarga bisa sekaligus berfungsi sebagai tempat bersantai atau ruang kerja. Kamar tidur biasanya memiliki ukuran standar, dirancang untuk kenyamanan dasar tanpa terlalu banyak detail dekoratif. Dalam beberapa denah, dapur diletakkan di sudut rumah untuk mengoptimalkan sirkulasi udara dan pencahayaan alami.
Pencahayaan alami menjadi bagian integral dari desain denah minimalis. Oleh karena itu, penempatan jendela sering diperhatikan dengan seksama agar setiap ruangan mendapatkan cukup sinar matahari. Ruang terbuka seperti halaman kecil atau taman juga sering dimasukkan dalam denah untuk memberikan kesan lebih lega dan menghadirkan elemen alam ke dalam rumah.
Secara keseluruhan, gambar denah rumah minimalis menunjukkan kesederhanaan yang penuh dengan fungsi, mengutamakan tata ruang yang terencana dengan baik, dan memberikan kenyamanan meskipun dalam keterbatasan luas tanah.
Gambar denah rumah minimalis memiliki manfaat yang sangat penting dalam proses perencanaan dan pembangunan sebuah hunian. Dengan adanya denah, pemilik rumah dapat memiliki gambaran jelas tentang tata letak dan pembagian ruang dalam rumah, sehingga mempermudah pengaturan fungsi setiap ruangan sesuai kebutuhan. Denah ini juga membantu mengoptimalkan penggunaan lahan, terutama pada area yang terbatas, dengan memastikan tidak ada ruang yang terbuang sia-sia.
Selain itu, denah rumah minimalis menjadi panduan bagi arsitek, kontraktor, dan pekerja bangunan dalam menjalankan konstruksi. Dengan acuan yang detail, proses pembangunan dapat berlangsung lebih efisien dan minim kesalahan. Denah juga memungkinkan pemilik untuk mengantisipasi kebutuhan teknis, seperti penempatan instalasi listrik, ventilasi, dan pencahayaan alami, sehingga menciptakan hunian yang nyaman dan hemat energi.
Dalam hal estetika, denah rumah minimalis memberikan panduan untuk menciptakan keseimbangan antara desain modern dan fungsi praktis. Dengan memahami struktur melalui denah, pemilik dapat merencanakan interior yang sesuai dengan gaya hidup mereka. Denah ini juga membantu dalam perencanaan anggaran, karena pemilik dapat mengukur kebutuhan material dan biaya dengan lebih akurat berdasarkan sketsa tata ruang yang sudah dibuat.
Secara keseluruhan, gambar denah rumah minimalis bukan hanya alat visual, tetapi juga merupakan fondasi utama dalam membangun rumah yang efisien, nyaman, dan sesuai dengan preferensi pemiliknya. Dengan perencanaan yang matang melalui denah, hasil akhir rumah akan lebih memuaskan dan sesuai harapan.

Kesimpulan
Mendesain denah rumah minimalis membutuhkan perencanaan yang matang agar hasilnya sesuai dengan kebutuhan dan tetap nyaman. Dengan memperhatikan aspek fungsionalitas, pencahayaan, dan sirkulasi ruang, Anda dapat menciptakan rumah minimalis yang ideal. Contoh gambar denah di atas dapat menjadi inspirasi dalam merancang hunian impian Anda. Jangan lupa untuk berkonsultasi dengan arsitek atau desainer interior untuk hasil yang lebih maksimal.
Jika anda membutuhkan konsultasi mengenai perencanaan renovasi rumah anda, silakan lebih lanjut bisa menghubungi Tim Arsi D. Studio. Kami akan mewujudkan impian anda menjadi kenyataan.
Terima Kasih
